



Vrijstaande design Villa, opgaand in de natuur, op 10.000 m2 in Pinoso
Pinoso, Alicante
3
2
66 km
60 km
165 m2
Neem direct contact op
Omschrijving
Pinoso oftewel El Pinos vernoemd naar de sparrenbomen die op de bergen en de heuvels staan. Het is een zeer landelijke omgeving met prachtige wijngaarden en velden met schitterende amandelbomen welke in het voorjaar rose- en witte bloesem dragen. Hier woon je midden in de natuur, terwijl op korte afstand toch alle gewenste faciliteiten aanwezig zijn, zo zijn er onder andere meer dan 50 restaurants en bars.
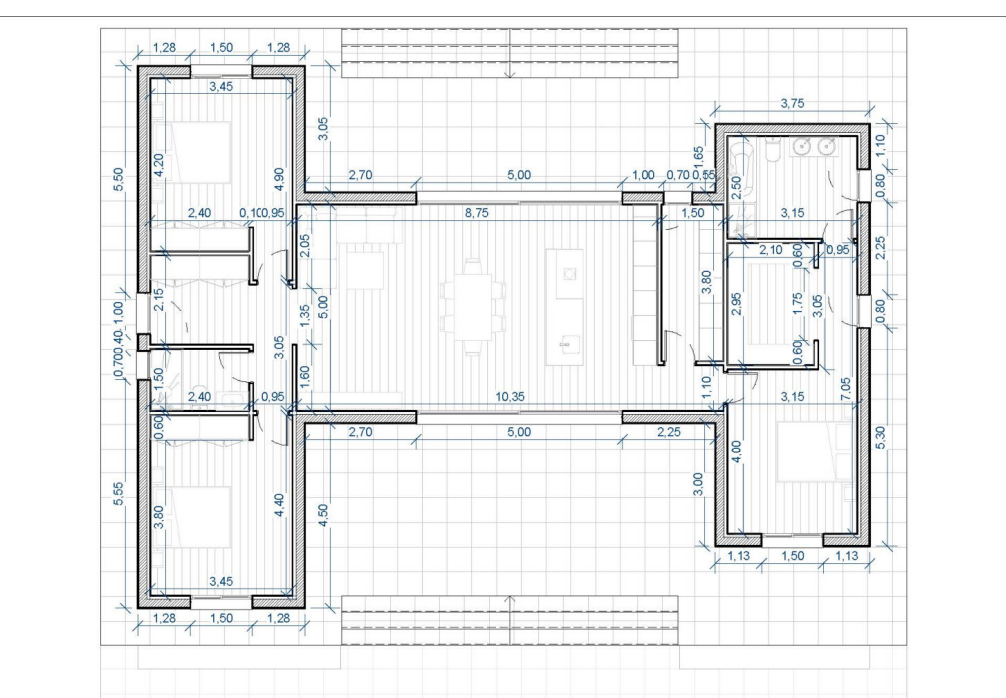
Deze schitterende vrijstaande design Villa’s, welke worden gebouwd op een plot van minimaal 10.000 m2 tot wel 20.000 m2, gaan volledig op in de overweldigende natuur, met name doordat de woonkamer aan beide zijden een 5 meter brede schuifpui heeft. De indeling van de woning is ook erg verrassend, hier is echt heel veel aandacht aan besteed. Voor deze Villa’s zijn verschillende grondstukken van diverse grootte verkrijgbaar. Ook de stijl kunt u zelf bepalen, van een Mediterraanse Villa tot een supermoderne Design Villa, de keuze is aan u. Het zwembad, dat standaard 8 x 4 meter is, kan groter als dit is gewenst. De tuin en eventueel een bijgebouw, gasthouse of een garage zijn ook nog geheel naar eigen wens in te vullen, evenals de tegels en andere materialen in en rondom de Villa. Daarnaast is het mogelijk de gehele Villa van vloerverwarming te voorzien en is er de mogelijkheid voor zonnepanelen. Er zijn 3 slaapkamers en 2 badkamers met de mogelijkheid voor een 3e badkamer. De master bedroom heeft een badkamer en-suite en een grote inloopkast. De Villa’s hebben een eigen oprit met een 4 meter brede toegangspoort met aan beide zijden muren. De prijs van de Villa’s is inclusief de grond.
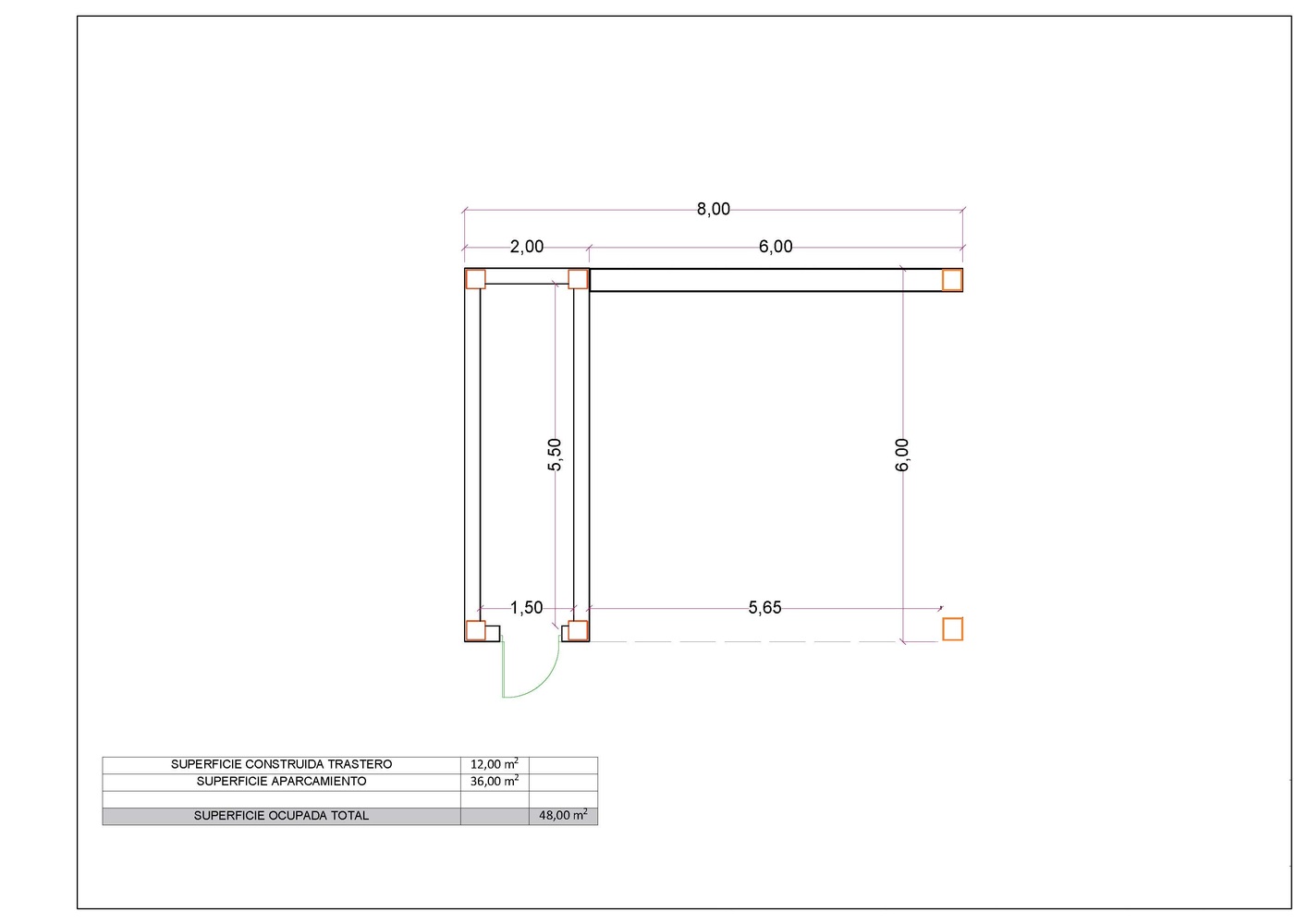
Mogelijkheden garage
- Open garage met berging (8x6 meter) vanaf € 24.500,00
- Gesloten garage met plat of schuin dak met dakpannen (6x5 meter) vanaf € 29.900,00
- Garage met buitenkeuken, bbq en badkamer met plat of schuin dak met dakpannen (8x7 meter) vanaf € 48.500,00
Kenmerken woning
- verhuur mogelijk
- perceel, vanaf 10.000 m2
- zwembad 12 x 4 meter met douche
- materialen, uitgebreide keuze
- bijkeuken
- kookeiland
- toegangspoort, inclusief
- septic tank
- water, aangesloten op waternet
Omgeving en faciliteiten
Gemiddeld 2 ½ uur vliegen vanuit Nederland of België naar Alicante
Alicante luchthaven, 60 km 45 minuten
Golf, 28 km
Strand, 66 km 55 minuten
Horeca, 2 km
Pinoso, 2 km centrum
Ziekenhuis, 27 km 30 minuten Elda
Medisch centrum, 2 km
Natuur, direct aan de natuur
Geinteresseerd?
Neem direct contact op
Vul hieronder uw gegevens in en wij nemen contact met u op.
Vergelijkbare projecten
Direct aan zee gelegen mooie gemeubileerde begane grond appartementen met 2 slaapkamers in La Marina
2
2
1 km
20 km
78 m2
Aan de duinen en natuurreservaat op slechts 20 minuten van de luchthaven van Alicante
Direct aan zee gelegen mooie gemeubileerde verdieping appartementen met 2 slaapkamers in La Marina
2
2
1 km
20 km
78 m2
Aan de duinen en natuurreservaat op slechts 20 minuten van de luchthaven van Alicante
Direct aan zee gelegen mooie gemeubileerde Penthouse appartementen met 2 slaapkamers in La Marina
2
2
1 km
20 km
78 m2
Aan de duinen en natuurreservaat op slechts 20 minuten van de luchthaven van Alicante